Leave a Message

Thank you for your message. We will be in touch with you shortly.

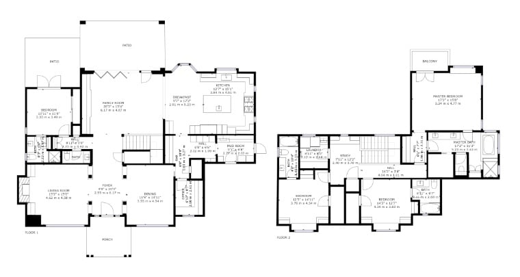
Floor Plans

Floor Plans


We create property floor plans with 98% accurate modeling, so potential buyers can confidently know how each room exists in relation to the others in the home.

Choose the Concierge Experience

You deserve to be taken care of, not just represented. Our goal is to understand what’s important to you, and ensure that everything we do is with that in mind, while guiding every aspect of before, during and after the transaction so you can focus on your move, and leave the rest to us.

Follow Me on Instagram